売買物件(マンション・収益物件)【売マンション】ニューフレックス新町
熊本市中央区新町3丁目3-5
PRポイント
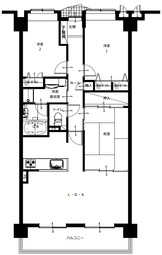
熊本市中央区新町に位置する「ニューフレックス新町」3階・3LDKタイプのお部屋です。平成12年1月築、鉄骨鉄筋コンクリート造の13階建マンションで、ファミリーにもおすすめの広さです。専有面積は約75.26㎡(22.76坪)、LDKは使いやすい17帖の広さがあります。和室6帖、洋室6.5帖、洋室5.7帖とそれぞれの空間を用意しており、ご家族のライフスタイルに合わせた使い方が可能です。管理費月額6,700円、修繕積立費月額4,900円と管理面も安心。駐車場も1台分利用でき、駐輪場・バイク置場もそれぞれ有料で空きがあります。熊本市電「蔚山駅」までは80m(徒歩1分)と、交通アクセスの良さも魅力です。周辺には熊本市立一新小学校(約277m)や西山中学校(約616m)があり、通学にも安心の距離です。新町エリアで快適な新生活を始めませんか。
Detail
物件詳細
| 物件No. | 建ぺい率 | ||
|---|---|---|---|
| 価格 | 万円 | 容積率 | |
| 所在地 | 熊本市中央区新町3丁目3-5 | 管理費 | |
| 交通 | 修繕積立金 | ||
| 土地面積 | 施工会社 | ||
| 私道負担 | 管理形態 | ||
| 土地権利 | 所有権 | 現状 | |
| 地目 | 学区 | ||
| 都市計画 | 引渡し | ||
| 用途地域 | 引渡し条件 | ||
| 設備 | 情報有効期限 | ||
| 建物 | |||
